Bellway has submitted a detailed planning application for 176 new homes on land at Jacksons Lane in Hazel Grove, Stockport.
Half of the homes planned for the 19-acre site would be affordable housing, while new publicly accessible open space would also be created as part of the development.
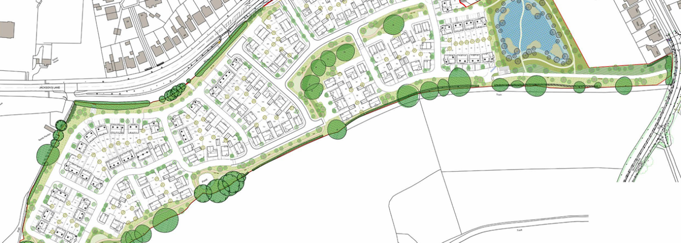
The application, which has been developed by Bellway’s Strategic Land team and Manchester division, follows the site’s inclusion in the draft allocation of land for new residential development in the emerging Stockport Local Plan. The land sits to the south of Jacksons Lane, on the southern edge of Hazel Grove.
Sebastian Burrow, Bellway Strategic Land Director for the North West, said: “We have worked closely with the landowners and Stockport Metropolitan Borough Council to develop proposals which make effective use of this site and respond positively to local planning policy, helping to deliver much-needed new homes in the borough.
“The project would include 50 per cent affordable housing, with a mix of rented and shared ownership properties, contributing towards meeting identified local housing needs and supporting the delivery of mixed, balanced communities in Stockport.
“This is a highly sustainable location for new homes, with shops, schools and bus stops all within walking distance. The development has been designed to promote walking and cycling, with new pedestrian and cycle links proposed as part of the site layout to ensure the development connects with surrounding footpaths.
“The proposals also provide significant areas of public green open space and a children’s play area, alongside a range of measures to protect and enhance biodiversity, including new planting and the creation of wildlife habitats. These will deliver environmental benefits as part of a high-quality, sustainable development.”
The plans include a range of two, three and four-bedroom houses for private sale and two and three-bedroom affordable houses, with a mix of terraced, semi-detached and detached designs.
The proposals also seek to enhance the site’s landscape features, retaining existing hedgerow and mature trees, including the tree-lined corridor along the site’s southern and south-western boundaries, and two ponds.
In addition, there will be new planting incorporating native species to maximise biodiversity improvements, and new wildlife habitats including bat and bird boxes.
As part of the planning process, it is anticipated that Bellway will make financial contributions towards improving local infrastructure, which could include schools, healthcare services and open space, sports and recreational facilities.
Sebastian said: “As well as providing new housing and open space for people in the area, this project will enhance the vitality, viability and accessibility of Hazel Grove, bringing jobs and inward investment into the local economy.”
More information about the work of Bellway Strategic Land can be found at https://www.bellwaystrategicland.co.uk/.
Building, Design & Construction Magazine | The Choice of Industry Professionals


