Residential : House Builders & Developers News
Race to the sky: Cardiff set for Wales’ tallest tower

Race to the sky: Cardiff set for Wales’ tallest tower

Plans for a striking 50-storey skyscraper in the heart of Cardiff have been granted planning permission, paving the way for what will become the tallest building in Wales. Developer REAP 3, a subsidiary of build-to-rent specialist BlueCastle Capital, has secured approval to replace its previously consented 35-storey project with a

Read More »
Construction begins at Bollo Lane – Europe’s largest Passivhaus scheme – on 900-home scheme with 50% affordable housing

Construction begins at Bollo Lane – Europe’s largest Passivhaus scheme – on 900-home scheme with 50% affordable housing

A major 900-home development delivering 50% affordable housing has broken ground at Bollo Lane in Ealing, marking one of the most significant affordable and sustainable housing schemes currently moving into construction in west London. Secretary of State for Housing, Steve Reed and Deputy Mayor of London for Housing and Residential

Read More »
Lovell Partnerships exchanges contracts for 199-home development at new £800m Fairham neighbourhood in Nottingham

Lovell Partnerships exchanges contracts for 199-home development at new £800m Fairham neighbourhood in Nottingham

Leading partnership housing specialist Lovell Partnerships has exchanged contracts on a 13-acre parcel of land at Fairham in Nottingham, where it plans to deliver 199 new homes. The major new residential development sits within the emerging new community, Fairham, which is being facilitated by Homes England and Clowes Developments. Situated five miles

Read More »
Vistry Group and Jigsaw Homes Group celebrate new partnership at flagship development in Linby, Nottinghamshire

Vistry Group and Jigsaw Homes Group celebrate new partnership at flagship development in Linby, Nottinghamshire

Vistry, the UK’s leading provider of mixed-tenure homes, has announced an exciting collaboration with Jigsaw Homes Group to deliver 43 much-needed affordable homes at its flagship Linby Meadows development in Nottinghamshire. This collaboration marks a significant milestone for the ambitious 763-home development in Linby, north of Hucknall. The project, supported

Read More »
Exchange Communications Completes One of the UK’s Largest In-Building Connectivity Projects at London’s Chelsea Barracks

Exchange Communications Completes One of the UK’s Largest In-Building Connectivity Projects at London’s Chelsea Barracks

Exchange Communications has completed a landmark connectivity project at Chelsea Barracks, delivering one of the UK’s largest and most technically advanced 4G in-building installations at the luxury London development. Setting a new benchmark for digital infrastructure in prime residential real estate, the phase two installation brings the total number of

Read More »
Latest Issue
Issue 338 : Mar 2026

Residential : House Builders & Developers News

Bouygues UK Celebrates Completion of Tustin Estate Phase 1, Delivering 167 New Homes For Southwark

Bouygues UK Celebrates Completion of Tustin Estate Phase 1, Delivering 167 New Homes For Southwark

Bouygues UK, acting as both developer and contractor, today announces the successful completion of Phase 1 of the Tustin Estate regeneration project in partnership with the London Borough of Southwark. The milestone marks the delivery of 167 high-quality new homes for existing residents, representing a transformative step in the community-led redevelopment of this 1960s housing estate near Old Kent Road. Phase 1, which is 100% replacement affordable homes, forms part of a larger £303million regeneration project that will ultimately deliver 690 homes across the estate by 2030. The completion of this first phase demonstrates Bouygues UK and Southwark’s commitment to resident-focused development and sustainable urban regeneration. A community-led approach to estate regeneration The Tustin Estate redevelopment was mandated through a democratic resident ballot in February 2021, where residents voted in favour of comprehensive estate renewal. This resident-first approach has been central to the project’s success, with the community actively shaping every aspect of the design and delivery through the Tustin Resident Project Group and extensive consultation sessions. “The completion of Phase 1 represents more than just new buildings, it’s the realisation of the residents’ vision for their community,” said Philippe Bernard, CEO and Chair at Bouygues UK. “Working as both developer and contractor has allowed us to maintain our commitment to quality, sustainability, and community engagement throughout every stage of this project. We’re incredibly proud to have delivered these homes in partnership with Southwark Council and, most importantly, the Tustin Estate community.”  Sustainable design and quality housing The completed Phase 1 homes are spread across three sites on the estate and have been designed by award-winning architects dRMM, in collaboration with Adam Khan Architects and JA Projects. The development prioritises sustainability and quality of life, featuring: The wider masterplan targets a 94% reduction in carbon emissions when in use, reflecting both Bouygues UK and Southwark Council’s commitment to environmental sustainability. Cllr Helen Dennis, Cabinet Member for New Homes and Sustainable Development, said: “This is a proud moment for the Tustin community and for Southwark. These first new homes are more than bricks and mortar – they represent security, opportunity and a fresh start for the families who are moving in. We worked closely with residents every step of the way, and their ideas have helped shape a neighbourhood that is greener, safer and built to last. Delivering 167 new council homes in this first phase shows the scale of our ambition. We are determined to keep building the high quality, affordable homes that people in our borough deserve.” Resident voices at the heart of Tustin Estate Development The success of Phase 1 has been built on genuine partnership with the Tustin Estate community. Residents have participated in weekly drop-in sessions, design workshops, and monthly project updates throughout the development process, ensuring their voices shaped the final outcome of their new homes. Andrew Eke, a Tustin Estate resident and Chair of Tustin Community Association, said: “The completion of Phase 1 reflects the strength of residents, the council, and the developer working together with trust, respect, and a shared purpose. This milestone has delivered the high quality homes our community deserves and reinforces our collective commitment to transforming the Tustin Estate into the vibrant, welcoming estate we all envision” The project team worked with community engagement specialists Urban Symbotics to ensure inclusive consultation, reaching younger residents, older residents, and all demographics across the estate. This approach resulted in the Tustin Estate Residents’ Manifesto, which has guided decision-making throughout the project. Lee, who is due to move into his new flat this week said ‘This new home will be life-changing for me and my wife. She is a wheelchair user and she can now finally have some independence and she is able to start cooking again.’ Phase 1 of this project has also seen community days as a focus to bring together everyone living on the estate and the teams involved in transforming it. The Tustin Estate regeneration project represents a significant investment in South London’s future, combining quality housing delivery with meaningful community engagement and environmental sustainability. David Banfield, Senior Project Manager at Pulse Consult, which led the project planning and programming for Phase 1 and will continue to work on the remaining phases, said: “From the outset, this project has been built on collaboration with the community and a real understanding of their needs. We’ve put clear workflows and processes in place to keep work moving efficiently, while remaining flexible to adapt as needed, always with the end users in mind. Consistent communication has been key – within project teams, the council, and most importantly the local community – ensuring everyone stays informed and engaged. This reflects a standard approach at Pulse: combining strong planning with proactive collaboration to deliver outcomes that truly meet the needs of those who will use them.” Future phases of Tustin Estate With Phase 1 now complete, work continues on subsequent phases of the Tustin Estate regeneration. Phase 2, with Bouygues UK as Developer and Contractor, will deliver 284 homes and is currently progressing through the planning process. The completed estate will include: A model for estate regeneration The Tustin Estate project was the first large-scale development procured through Pagabo’s Developer Led Framework, establishing a precedent for efficient, community-focused estate regeneration. Jonathan Parker, Head of Construction at Pagabo, commented: “It would be difficult to find a better large-scale scheme than that of Tustin Estate to be the first procured through our Developer Led Framework. Connecting Bouygues UK with the London Borough of Southwark is set to create social and economic value for the local community following a fair and competitive tender process – ensuring the best outcomes for all involved.” Building, Design & Construction Magazine | The Choice of Industry Professionals

Read More »
Race to the sky: Cardiff set for Wales’ tallest tower

Race to the sky: Cardiff set for Wales’ tallest tower

Plans for a striking 50-storey skyscraper in the heart of Cardiff have been granted planning permission, paving the way for what will become the tallest building in Wales. Developer REAP 3, a subsidiary of build-to-rent specialist BlueCastle Capital, has secured approval to replace its previously consented 35-storey project with a significantly taller mixed-use tower. The development will rise to 178 metres and be located beside Cardiff Central Station and the Principality Stadium. Once built, the tower will comfortably surpass Swansea’s 107-metre Meridian Tower, which currently holds the title of Wales’ tallest building. The new scheme will deliver 528 build-to-rent apartments, including 344 one-bedroom and 184 two-bedroom homes. Plans also include a two-storey pavilion building providing commercial space for uses such as restaurants. The development site sits between Wood Street and Rose Lane within the city’s Central Square regeneration district. The new skyscraper will dominate the skyline in this part of the city and significantly exceed the height of the existing 29-storey Meridian Tower in Swansea. Designs for the building include two staircases and five lifts to support residents and visitors. According to REAP 3, the development has been carefully designed to accommodate heavy footfall, particularly during major events at the nearby Principality Stadium, when as many as 80,000 people can pass through the area. The project team includes architect 5plus, structural and MEP engineer WSP, cost consultant Gleeds and BREEAM adviser RLB. BlueCastle Capital is currently assembling a pipeline of build-to-rent developments across several UK cities, although the company is still working to move its first wave of schemes into construction. At present, the developer’s pipeline stands at around 2,500 homes across five projects. BlueCastle Capital build-to-rent pipeline Scheme | Location | Scale | Status Building, Design & Construction Magazine | The Choice of Industry Professionals

Read More »
From pharma HQ to riverside neighbourhood: 2,300 homes approved for Brentford regeneration site

From pharma HQ to riverside neighbourhood: 2,300 homes approved for Brentford regeneration site

Plans to transform the former GlaxoSmithKline headquarters in Brentford into a major mixed-use neighbourhood featuring more than 2,300 homes have been approved. Developer Hadley Property Group has secured planning permission for the large-scale redevelopment of the 13-acre site at 980 Great West Road in West London. The scheme will deliver over 2,300 homes across a mix of tenures, with 35% designated as affordable housing. Alongside the residential development, plans include around 330,000 sq ft of commercial and retail space, creating a new neighbourhood along the M4 corridor. A key part of the development involves retaining and repurposing two of the main buildings from the former GlaxoSmithKline campus, including its landmark tower. Hadley, which acquired the site three years ago, said the approach will help reduce embodied carbon while allowing the creation of new homes with large balconies, shared amenity spaces and a rooftop conservatory. The reuse strategy is expected to save more than 34,500 tonnes of embodied carbon during the demolition and construction stages. Studio Egret West is leading the redesign of the tower and is also involved in new affordable housing elements and the wider landscaping across the site. More than 60% of the development area will be given over to public realm, including new play spaces, gardens and improved access to the River Brent and nearby Boston Manor Park. The proposals also include around 23,000 sq m of employment space, with flexible units intended for local businesses, markets and community events. Hadley said the project will open up what has historically been a closed corporate campus, introducing a series of distinct areas described as arrival, central, underside and riverside zones designed to reconnect the site with Brentford High Street. One of the more distinctive features of the masterplan is a strip of public space known as the Underside, which will run beneath the elevated M4 motorway. A number of architectural practices are involved in the project, including Haworth Tompkins, Studio Egret West, Metropolitan Workshop and DRMM. The wider project team includes TPS as project manager, Gardiner & Theobald as quantity surveyor and Buro Happold providing MEP services. Andy Portlock, chief executive of Hadley, said reaching planning approval reflected the collaborative approach taken with the local authority. He said the development combines a major retrofit strategy with a strong focus on creating a new community, adding that the scheme will include a range of housing tenures alongside facilities such as a new NHS primary care centre and a technology and innovation hub as part of the emerging Golden Mile district in Brentford. Building, Design & Construction Magazine | The Choice of Industry Professionals

Read More »
First 30 homes handed over on iconic £36m Port Loop scheme in Birmingham

First 30 homes handed over on iconic £36m Port Loop scheme in Birmingham

The first 30 homes on a high-profile £36m urban development scheme in Birmingham have been handed over – ahead of schedule. Keon Homes, working in partnership with sister company Cameron Homes, has completed the two and three-bedroom homes on Icknield Port Loop development for housing association partner Midland Heart, with many residents already settling in. Early feedback has been overwhelmingly positive, with many praising the thoughtful design of the homes, the sense of community taking shape, and the smooth move‑in experience. It marks an important milestone for Phase 3 of the scheme, which will eventually see the construction of 124 properties, a mix of different size homes and a small apartment block that straddles the canal corner. All homes are being designed to be sympathetic to the heritage of the site and will be spacious and zero carbon ready, incorporating electric heating, hot water heat pumps and generating localised electricity through solar panels. They will utilise sustainable timber frame construction methods and the first 30 properties all feature sawtooth roofs – a hat tip to an industrial past. Matt Beckley, Partnerships Director at Keon Homes, commented: “Port Loop was a real statement urban regeneration scheme for the local authority, yet hasn’t been without its challenges with two developers entering administration before they could start Phase 3. “We came in and promised to build the 124 properties on time and to the highest standards and this first handover, ahead of schedule, reaffirms that commitment.” He continued: “More importantly, we have delivered thirty much-needed affordable homes to individuals and families, giving them the opportunity to start new lives and form the beginning of new communities. That’s what this scheme is all about.” Icknield Port Loop is the latest in a long line of successes for Keon Homes, who secured a record £60m year in 2025. The company has evolved into one of the Midlands’ fastest growing affordable developers and a business that thrives on delivering complex projects that predominantly bring brownfield sites back to life. There is a big focus on ensuring projects leave a legacy to the region, both in the fabric of the design, the creation of new communities and the economic boost to a supply chain that is 90% based within a 25-mile radius of the scheme. “Our mantra is ‘to do the right thing’ and this was put in place by the founding directors in 2017,” added Matt. “We can only consistently deliver schemes ahead of schedule if you have the right supply chain in place, with transparent communications, trust and collaboration at the heart of the relationship. “Port Loop is the perfect example of this in action. We’re utilising building experts and sub-contractors that are predominantly based within the West Midlands and have worked with us on numerous schemes before. In fact, last year we invested £48m with our suppliers.” He continued: “Developing the next generation of construction professionals is also important to us. This isn’t marketing rhetoric, this is reflected in the fact we are employing 15 apprentices directly or indirectly on this landmark scheme.” Port Loop is the fifth scheme Keon Homes has developed in partnership with Midland Heart, following completion of Booth’s Lane and ongoing works at Holyhead Road, Bulkington and Phase 3D of Port Loop. Midland Heart’s ambitious development programme has delivered 4,000 new affordable homes over the past five years, with a further 2,250 set to be built and handed over by 2030. Joe Reeves, Deputy Chief Executive at Midland Heart, said: “Port Loop is an important regeneration project for Birmingham, and we’re delighted to see the first homes completed and handed over to tenants. “These properties reflect our commitment to delivering sustainable, well‑designed places where people can thrive. As the wider scheme progresses, we look forward to welcoming many more families into this growing neighbourhood of high‑quality, affordable homes.” For further information, please visit www.keonhomes.co.uk or follow the company on its social media channels. Building, Design & Construction Magazine | The Choice of Industry Professionals

Read More »
Construction begins at Bollo Lane – Europe’s largest Passivhaus scheme – on 900-home scheme with 50% affordable housing

Construction begins at Bollo Lane – Europe’s largest Passivhaus scheme – on 900-home scheme with 50% affordable housing

A major 900-home development delivering 50% affordable housing has broken ground at Bollo Lane in Ealing, marking one of the most significant affordable and sustainable housing schemes currently moving into construction in west London. Secretary of State for Housing, Steve Reed and Deputy Mayor of London for Housing and Residential Development, Tom Copley joined partners today to mark the start of construction on the brownfield site, which will provide 450 affordable homes alongside new green spaces, shops and offices to create an outstanding new community in west London. Bollo Lane will be delivered in two phases. Phase 1, in partnership with Grainger, will provide high-quality homes for private and intermediate rent. Phase 2, delivered with Metropolitan Thames Valley Housing, will include social rent, intermediate and private homes. The development is set to complete in December 2029.   Delivered by the West London Partnership (WLP) – a joint venture between Places for London and Barratt London – the scheme will transform underutilised land next to Acton Town station into a new mixed-use neighbourhood, helping to address London’s acute housing need while improving connectivity between Acton and Chiswick. The affordable homes will comprise 50% London Living Rent in Phase 1, with 67% social rent and 33% shared ownership in Phase 2. Bollo Lane is a shining example demonstrating how well‑designed homes can be delivered on brownfield land next to a vital transport hub, and this comes as the government is proposing reforms to the National Planning Policy Framework that will encourage housebuilding in sustainable locations, giving a ‘default yes’ to suitable development near well-connected stations. The development forms part of the West London Partnership’s wider ambition to unlock more than 4,000 homes across eight London boroughs, alongside 285,000 sq ft of commercial space and the creation of approximately 9,600 jobs. It follows the success of Blackhorse View which delivered 350 award winning homes, with 50% affordable housing, and a new community.   Places for London is committed to creating and curating a legacy that reflects London’s diversity, ambition and spirit. Starting at Bollo Lane, the partnership between Places for London and Barratt London will bring forward the largest Passivhaus programme in Europe. From Phase 2 onwards, homes will be built to Lo-E standard – exceeding Passivhaus energy efficiency to ensure a 60% reduction in heating costs and a 90% reduction in carbon emissions for future residents. Steve Reed MP, Secretary of State for Housing, said: “Bollo Lane is exactly the kind of development we need and shows what’s possible when we work together to build the homes Londoners desperately need – more high-quality, affordable homes in well-connected places. “Working with the Mayor we are saying ‘yes’ to transforming brownfield land into new homes, jobs, and opportunities, building on our planning overhaul and emergency package that will put us firmly on track to fix London’s housing crisis.” Sadiq Khan, the Mayor of London, said: “Bollo Lane in Ealing is one of the largest and most important affordable housing schemes in London, supporting our action from City Hall to deliver thousands of new social and affordable homes across the capital. We will continue to make swift progress on a package of pro-housing, emergency measures with Government to accelerate housebuilding as we build a better, fairer city for everyone.” Craig Carson, Regional Managing Director at Barratt London, said: “Bollo Lane exemplifies the power of public and private partnerships in delivering the homes London needs. Through the West London Partnership, Barratt London and Places for London will make a meaningful contribution to tackling London’s housing shortage while creating a vibrant new neighbourhood for Ealing.” Graeme Craig, Director and Chief Executive at Places for London, said: “We and Barratt London are delighted to be breaking ground on a development that will see a new community of 900 homes with 50 per cent affordable homes in this well-connected part of the city. The first phase of 195 homes will be acquired by Places for London’s joint venture with Grainger, delivering long-term income to reinvest in the transport network. “With high levels of affordable housing and the largest rollout of Passivhaus homes in Europe, our West London partnership is setting the standard for the future of housebuilding in London.” Building, Design & Construction Magazine | The Choice of Industry Professionals

Read More »
Housebuilder Boosts Housing Supply In Hemel Hempstead With New Launch At Chaulden Meadows

Housebuilder Boosts Housing Supply In Hemel Hempstead With New Launch At Chaulden Meadows

Barratt Homes is set to launch its first homes at Chaulden Meadows in Long Chaulden, Hemel Hempstead, Hertfordshire, on 21st February. The housebuilder’s first phase will bring 155 homes to the development, following a successful launch by David Wilson Homes in late 2025. The launch will comprise two-, three- and four-bedroom homes, alongside two-bedroom apartments. A further 65 affordable homes will be delivered through schemes such as shared ownership and social rent, delivered by a Registered Provider. The first residents are expected to move in this summer. Hemel Hempstead is a strategic development location in the Home Counties and was designated as a ‘New Town’ in 1947. The Government has renewed its focus on how New Towns can support housing delivery and economic growth, and Chaulden Meadows will contribute to meeting local housing targets while bringing forward new community infrastructure for the area. Alongside new homes, Chaulden Meadows includes plans for a 70-bedroom care home, 7,500 sq ft of retail space, a community hall and a nursery. Wider works will include new access roads, public open space, children’s play areas and sustainable drainage measures. Section 106 contributions from the overall development totalling more than £12.6m will support investment in local services and facilities, including education, healthcare, transport, sports provision and open space. Over the span of the project, Chaulden Meadows will provide 1,100 new homes in Hemel Hempstead, ranging from one to five-bedroom homes. Affordable housing will make up 40% of the overall delivery, equating to 440 homes. Marc Woolfe, Sales and Marketing Director at Barratt North Thames, comments: “Chaulden Meadows represents an important next chapter for Hemel Hempstead. It brings much-needed new homes to the area, including affordable housing, alongside infrastructure that will support both residents and the wider community. “As one of the original post-war New Towns, Hemel Hempstead has a strong legacy of connected neighbourhoods and community-focused designs. We’re proud to build on that heritage with homes that reflect the character of West Hemel, using red and buff brick and traditional gable-fronted elevations, creating a development that will serve the area for years to come.” Two, three and four-bedroom homes are currently available at Chaulden Meadows. To find out more about Chaulden Meadows or Barratt Homes, visit www.barratthomes.co.uk or call 0333 355 8501. Building, Design & Construction Magazine | The Choice of Industry Professionals

Read More »
Lovell Partnerships exchanges contracts for 199-home development at new £800m Fairham neighbourhood in Nottingham

Lovell Partnerships exchanges contracts for 199-home development at new £800m Fairham neighbourhood in Nottingham

Leading partnership housing specialist Lovell Partnerships has exchanged contracts on a 13-acre parcel of land at Fairham in Nottingham, where it plans to deliver 199 new homes. The major new residential development sits within the emerging new community, Fairham, which is being facilitated by Homes England and Clowes Developments. Situated five miles from Nottingham City Centre in the Borough of Rushcliffe, Fairham is a 606-acre, £800m neighbourhood that will ultimately deliver around 3,000 new homes, alongside new infrastructure including employment space, a new school and community facilities. Subject to planning, the scheme will comprise 99 properties for open market sale and 100 affordable homes, contributing to the continued growth of one of the region’s most significant new communities. Lovell Partnerships’ regional managing director, Beth Bundonis, said: “Exchanging contracts at Fairham Phase Four is an important milestone for Lovell Partnerships and reinforces our commitment to delivering high-quality new homes as part of well-planned, sustainable communities. “Fairham is a landmark development for Nottingham, and we look forward to submitting our plans for this next phase in partnership with Clowes, Homes England and the wider project team.” Once complete Fairham will be the East Midlands’ most significant mixed-use development. With world-class connectivity, future forward homes, new amenities and a wealth of employment and business opportunities it is set to become the region’s prime commercial and residential destination. Homes England head of disposals, Mark Laidow, commented: “The exchange of contracts with Lovell Partnerships marks another important step forward in the delivery of Fairham. This latest phase will help maintain momentum across the site, bringing forward much-needed new homes alongside the infrastructure and amenities that will support our long-term vision. “This is a prime example of how we are working collaboratively with partners like Lovell to achieve our mission to build vibrant, new communities that people can be proud of.” Planning for the development is expected to be submitted in spring 2026.  To find out more about Lovell Partnerships visit the website. Building, Design & Construction Magazine | The Choice of Industry Professionals

Read More »
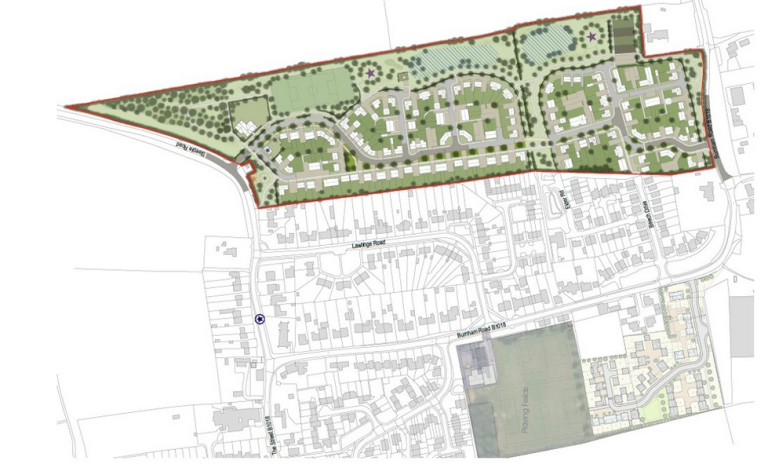
Vistry Group and Jigsaw Homes Group celebrate new partnership at flagship development in Linby, Nottinghamshire

Vistry Group and Jigsaw Homes Group celebrate new partnership at flagship development in Linby, Nottinghamshire

Vistry, the UK’s leading provider of mixed-tenure homes, has announced an exciting collaboration with Jigsaw Homes Group to deliver 43 much-needed affordable homes at its flagship Linby Meadows development in Nottinghamshire. This collaboration marks a significant milestone for the ambitious 763-home development in Linby, north of Hucknall. The project, supported by Nottinghamshire Country Council, will offer a vibrant mix of two-, three-, and four-bedroom homes, maisonettes, and apartments. Andy Reynolds, Managing Director for Vistry South East Midlands, said: “We are delighted to welcome Jigsaw as a partner at our Linby Meadows development. Together, we’re building more than just homes, we’re creating a thriving new community where families can flourish. After listening to local residents and shaping the scheme to meet their needs, we’re now on site, building a new community of high-quality, mixed-tenure properties for people in the area to call home.” Garnet Fazackerley, Operations Director of Development at Jigsaw Homes Group, added: “As a significant housing development providing new homes via a Section 106 agreement, this scheme demonstrates how planning policy can meaningfully deliver both quality new homes for sale and much‑needed affordable housing. This project is a strong example of how partnerships can translate policy into real, positive impact for local communities. There is a real and growing need for quality, affordable homes in this area, and we’re proud to join forces with Vistry to provide properties that offer comfort, security and opportunity for local people. Our partnership is about more than bricks and mortar – it’s about supporting communities and creating green, welcoming spaces for everyone.” The land acquisition from the Council in March 2025 has unlocked a £6 million investment in local services, including substantial funding for education, highways, public transport, and healthcare. The scheme will also introduce new parks, sports facilities, wildlife corridors, and safe pedestrian and cycle routes, as well as a brand-new primary school. Vistry looks forward to welcoming the first residents to Linby Meadows later this year as the vision for a vibrant, inclusive, and sustainable community comes to life. Building, Design & Construction Magazine | The Choice of Industry Professionals

Read More »
Exchange Communications Completes One of the UK’s Largest In-Building Connectivity Projects at London’s Chelsea Barracks

Exchange Communications Completes One of the UK’s Largest In-Building Connectivity Projects at London’s Chelsea Barracks

Exchange Communications has completed a landmark connectivity project at Chelsea Barracks, delivering one of the UK’s largest and most technically advanced 4G in-building installations at the luxury London development. Setting a new benchmark for digital infrastructure in prime residential real estate, the phase two installation brings the total number of antennas across the project to an extraordinary 755, all engineered and integrated by Exchange Communications, the UK’s leading provider of smart, in-building cellular solutions. A showcase of world-class architecture and design, Chelsea Barracks is renowned for its exceptional apartments, penthouses and townhouses, crafted by globally acclaimed designers. The development’s commitment to excellence extends far beyond aesthetics. By incorporating 4G infrastructure at the construction stage, rather than retrofitting it later, Exchange Communications ensured that every piece of equipment blends seamlessly into the building’s fabric, maintaining the integrity of the design while delivering best-in-class performance. Tom Sime, CEO of Exchange Communications, said: “This project ensures residents benefit from fast, consistent and reliable mobile connectivity across all major networks. Installing 384 antennas as part of the second phase, 755 in total, positions Chelsea Barracks as one of the most comprehensively connected residential developments in the UK. “We’re proud to help bring to life a collection of homes defined by exceptional quality and uncompromising attention to detail.” He added: “When connectivity is embedded into a development from the earliest planning stages, the results are not only more efficient, but also more integral to the funcitonality of the building. This approach enables us to deliver a seamless, future-ready solution that enhances every aspect of the resident experience.” Exchange Communications continues to lead the UK market in smart-building and 5G technology. The company has created some of the most connected public environments in the country, including major shopping centres, hospitals, sports arenas, football stadiums, hotels and key national transport hubs. The completion of Chelsea Barracks’ phase two connectivity programme further cements Exchange Communications’ reputation as the partner of choice for ambitious developments demanding world-class digital infrastructure. For more information visit www.exchangecommunications.co.uk Building, Design & Construction Magazine | The Choice of Industry Professionals

Read More »
Vistry partners with Sage Homes as it starts work on 163 new homes at Mastin Moor, Chesterfield

Vistry partners with Sage Homes as it starts work on 163 new homes at Mastin Moor, Chesterfield

Vistry, the UK’s leading provider of mixed-tenure homes, has officially started work on 163 homes in Mastin Moor, Chesterfield. Delivered in partnership with Sage Homes, England’s largest provider of newly built affordable homes, the scheme will offer a diverse range of housing options for local people. Situated to the east of Bolsover Road, the development forms part of a wider 650‑home masterplan, being delivered by Devonshire Property Group, which includes proposals for later living, a local centre, extensive new parkland and an extension to the existing community garden. The wider site is also home to the Construction Skills Hub operated by Chesterfield College. Dave Bradley, Managing Director of Vistry North Midlands, said: “We’re thrilled to be moving forward with this project, which is all about creating opportunities for local people. Our focus is on building not just 163 high-quality homes, but a thriving, inclusive community where families can grow and friendships can flourish. We’re committed to working closely with our partner Sage, local authorities, and residents to ensure this development delivers real value for Mastin Moor and the wider Chesterfield area.” Alex Dawkins, Acquisitions Director, Sage Homes, said: “We are pleased to extend our partnership with Vistry and, as England’s largest provider of newly built affordable homes, are proud to be providing much needed high quality, energy efficient, affordable homes for people on the local authority’s housing waiting list.” Andrew Byrne, Director of Devonshire Property Group, said: “Seeing this second phase of Mastin Moor commence is a huge step forward in the delivery of the wider masterplan. We are delighted to welcome Vistry and their partner Sage Homes to Mastin Moor and Chesterfield. Their commitment to the provision of affordable homes to rent or buy, helping create diverse and vibrant communities, is a key factor in the partnership and something that aligns with the core values of the Devonshire Group. Vistry’s use of timber frame buildings also demonstrates their commitment to creating sustainable homes for the future.  We wish them well.” Vistry will continue to work with local stakeholders throughout the construction process to ensure the new neighbourhood reflects community aspirations and supports long‑term growth in the region. Building, Design & Construction Magazine | The Choice of Industry Professionals

Read More »