
Edge and Mace mark topping out of EDGE London Bridge
Edge, the pan-European real estate company, has announced the topping out of EDGE London Bridge, its landmark 26-storey office development located on St Thomas Street, SE1. The milestone signals a major step towards delivering one of London’s most sustainable office towers, designed to set new standards in health, wellbeing and environmental performance. The project is being delivered by Mace as main contractor and is due for completion in 2026. Backed by long-term institutional capital through a joint venture between Edge and Goldman Sachs Asset Management, EDGE London Bridge demonstrates how global investment partnerships can drive domestic economic growth while accelerating the transition to a net zero carbon-built environment. The project highlights the crucial role of institutional investors in supporting sustainable development in the UK, fostering long-term growth and advancing the shift to a low-carbon economy. Located adjacent to London Bridge Station, the 260,000 sq. ft development has been designed by Pilbrow + Partners and is targeting BREEAM Outstanding and WELL Platinum certification. It features cutting-edge energy efficiency measures, smart building technologies and flexible, future-proofed office space designed to meet occupier demand for workplaces aligned with net-zero targets. Marian Herman, CEO, Edge said: “EDGE London Bridge embodies our vision of creating workplaces that are both people-focused and planet-positive. This milestone takes us one step closer to delivering a flagship office tower that demonstrates how sustainability and investment performance can go hand-in-hand. We are proud to be working with a long-term institutional partner to realise a project that will contribute to London’s global competitiveness while setting a new benchmark for the UK real estate market.” Fons van Dorst, Executive Managing Director UK Edge, said: “The topping out of EDGE London Bridge is not only a construction milestone but also a symbol of collaboration between developer, contractor, investors and the wider community. With its strong location, best-in-class sustainability credentials and future-ready design, EDGE London Bridge will help redefine what occupiers expect from prime London offices.” Ged Simmonds, Managing Director Private Sector Mace Construct, said:‘’We are proud to celebrate this significant milestone at Edge London Bridge, a project that exemplifies what’s possible when ambition and bold thinking come together. From the outset, our shared ambition with Edge has been to challenge convention and deliver a building that sets new benchmarks for environmental performance and sustainable construction. We’ve built on that commitment by pioneering low-carbon initiatives that push the boundaries of what’s achievable. Trust and a collaborative mindset have been central to our success. From design and project management to the supply chain, everyone is empowered to contribute ideas to achieve better outcomes. It’s this collective, proactive spirit that continues to shape a truly exceptional building.” EDGE London Bridge is Edge’s first London project and a flagship investment in the UK capital. It forms part of the company’s wider strategy to bring sustainable and future-ready workplaces to major European cities. Building, Design & Construction Magazine | The Choice of Industry Professionals

McAleer & Rushe appointed to deliver landmark office redevelopment at 80 Pelham Street, Kensington & Chelsea
Leading design and build contractor McAleer & Rushe has been appointed as Principal Contractor by Wellcome Trust to deliver a major £52m office redevelopment at 80 Pelham Street in the Royal Borough of Kensington & Chelsea, West London. The project will transform a previously underutilised site into a sustainable, high-quality five-storey office building, totalling approximately 114,000 sq ft. Designed to meet modern office standards and attract long-term tenants, the scheme also respects the local heritage and enhances the surrounding streetscape. The development employs a contextual architectural approach, incorporating traditional materials such as stone and brick whilst drawing inspiration from surrounding heritage and neighbouring buildings. The design includes green roofs and terraces to support biodiversity, improved pedestrian experiences at street level, and the retention of gym facilities within the new building. The development is targeting BREEAM Outstanding, the highest environmental performance rating for building design, as well as WELL Platinum Certification, promoting health and wellbeing for building occupants. The project aims to achieve an EPC Rating A, demonstrating top-tier energy efficiency, as well as a NABERS 5-Star Rating for excellent operational energy performance. Enabling works are underway, with McAleer & Rushe delivering the main contract through to completion in October 2027. Darragh Greenan, Director at McAleer & Rushe, said, “We are proud to be chosen to deliver this exceptional new office development that combines outstanding design, sustainable practices, and community-oriented spaces. 80 Pelham Street, located in the Royal Borough of Kensington & Chelsea, is a prime example of our expertise in delivering modern, efficient workplaces that enhance the local environment and support the wellbeing of occupants. We look forward to working closely with our client, partners, and valued supply chain to bring this prime new office development to life.” Robert Coke, Head of Buyout Investments and Residential Property at The Wellcome Trust, said, “This is a landmark scheme for the Wellcome Trust and we’re delighted to appoint McAleer & Rushe as our trusted contractor. Their proven expertise and responsible approach give us full confidence as we move into the next phase to deliver vibrant new office space that will generate new jobs, attract talent and bring fresh energy to Brompton Cross.” Building, Design & Construction Magazine | The Choice of Industry Professionals

Vistry selected for Preston scheme with Community Gateway Association
Vistry, the UK’s leading provider of mixed-tenure homes, has been selected as the preferred bidder to deliver a significant new residential development in Preston, following a competitive tender win for a mixed-tenure scheme with Community Gateway Association (CGA) – Preston’s largest social housing landlord. The £28 million contract will mark the first collaboration between Vistry and CGA and will see the delivery of 126 homes in the first phase of this wider scheme. The development will offer a mix of tenures, supporting CGA’s commitment to providing a wider choice of good quality and affordable homes for the local community. Work is scheduled to begin on site in 2026, with Vistry bringing its proven expertise in delivering large-scale residential projects to the partnership. Zac Worthington, Managing Director of Vistry Merseyside & Cheshire West, said: “We’re delighted Community Gateway Association has chosen to work with us for the first time on this exciting new scheme in Preston. Working together we can deliver a significant number of homes for local people in a range of housing choices.” Stephen Galbraith, Head of Development and Regeneration at Community Gateway said: “We’re pleased to be partnering with Vistry on this development, which will bring much-needed, high-quality homes to Preston. This partnership reflects our corporate priority of offering a wider choice of affordable housing and supporting our ongoing commitment to meet local housing needs.” Building, Design & Construction Magazine | The Choice of Industry Professionals

Mulberry pops into Gunwharf Quays as Landsec sharpens premium mix
Mulberry will open a 1,466 sq ft pop-up at Landsec’s Gunwharf Quays in Portsmouth later this month, adding the British heritage label to the outlet’s line-up of premium brands. The temporary store, set within The Avenues, will showcase a range of the brand’s leather goods and follows a period of active leasing and investment at the waterfront scheme. Recent arrivals include Citizen and Oliver Bonas, joining established names such as Penhaligon’s, AllSaints, Polo Ralph Lauren and Coach. The signing comes on the back of strong trading across Landsec’s outlet portfolio, with April–June sales up 11.2% year-on-year. The landlord’s ongoing investment programme at Gunwharf Quays aims to elevate the customer experience and support a more premium tenant mix. “We’re focused on elevating Gunwharf Quays as a destination for premium brands, and introducing Mulberry to The Avenues is a testament to its growing appeal,” said Pablo Sueiras, head of retail and hospitality leasing at Landsec. “With consistent high footfall and our ongoing investment programme enhancing the surroundings, we’re creating the ideal environment for brands to connect with guests. We are seeing continued rise in demand for elevated experiences, and this pop-up is perfectly placed to cater to that trend.” For retail property watchers, the move underscores how outlet destinations are using short-term formats to test demand, optimise unit sizes and maintain momentum in a competitive, experience-led market. Building, Design & Construction Magazine | The Choice of Industry Professionals

FMB Calls for Action on Construction Mental Health on World Mental Health Day
As World Mental Health Day today (10/10/25) highlights the importance of wellbeing across all workplaces, the Federation of Master Builders (FMB) is urging builders to make mental health a top priority. With construction workers continuing to face suicide rates three to four times the national average, the FMB is campaigning for cultural change where open conversations and support become embedded in everyday work life. Long hours, a lack of job security, physical demands and a culture that has been historically less familiar with the idea of asking for help. As charity partners with the Lighthouse Charity, the FMB is reminding builders that they and their families can access their vital support services. This includes a confidential 24/7 helpline (0345 605 1956), counselling, emergency financial aid, and tailored wellbeing resources designed for the pressures of the construction sector. Brian Berry, FMB Chief Executive, said:“Mental Health in the construction sector is a topic that needs to be discussed much more within industry and beyond. The construction sector is built on teamwork and trust, and these values must extend to how we handle mental health. World Mental Health Day is a reminder that too many builders are still facing these challenges – caused by tough, physically demanding working conditions alone. Every small building business has a duty to prioritise mental wellbeing. It’s only through leadership, open discussion and action that we can create a safer, healthier construction sector – that encourages those who need help, to ask for it.” The FMB has partnered with the Chartered Institute of Building (CIOB) for a podcast episode dedicated to the issue of mental health. It features the FMB’s award-winning member Dorian Bowen, alongside the FMB’s CEO Brian Berry. The episode discusses findings from the CIOB’ Understanding Mental Health in the Built Environment 2025 report and offers practical advice for builders and business owners across the UK. Building, Design & Construction Magazine | The Choice of Industry Professionals

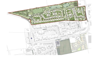
Catesby Estates completes sale of 25 acre site in Essex village to Dandara Homes
The sale follows Catesby Estates successfully overturning a refused planning application in 2024 Catesby Estates, a leading strategic land promoter, has completed the land sale of a 25 acre site in Latchingdon, Essex, to housebuilder Dandara Homes. The land, which is a dedicated greenfield site, has planning permission for 160 new homes, 50% of which will be affordable. The plans also include a designated plot for a children’s nursery, comprising a 300 sqm building with outside play space and on-site parking. More than 40% of the 25 acre site will be retained and transformed into a new community park. This green space will include a new children’s play area, community allotments and integrated walking and cycling routes. The site also makes provision for a 100 sqm office hub, designed to support residents working from home, local entrepreneurs and start-ups. Planning was achieved on this site in 2024 after Catesby Estate’s team successfully appealed Maldon District Council planning committee’s decision to refuse the scheme in 2023, despite a recommendation for approval by the Planning Officer. The refusal was overturned last year, with the Inspector’s report supporting Catesby Estates’ evidence of a significant shortfall of new housing delivery in Maldon. David Harper, Senior Area Land Director at Catesby Estates, comments: “The completion of this land sale to Dandara Homes will not only accelerate the delivery of much-needed new homes but it will also bring significant community benefits to the area, including a nursery, office hub, and dedicated play areas. “We’re proud that our team was able to demonstrate the demand for these new homes and facilities to the council on behalf of the landowner, and overturn a previously unsuccessful planning application. We look forward to seeing the team at Dandara Homes transform this land for the benefit of its future residents and surrounding community.” John Baines, Land Director at Dandara Homes, adds: “Dandara are really pleased to have completed the purchase of this site in Latchingdon and look forward to delivering a high-quality development that will make a real contribution to the local community. The mix of new homes, green spaces, and facilities such as the nursery and office hub will help create a vibrant and sustainable place to live.” David Brooks and Tom Bloomfield from Brooks Leney acted on behalf of the landowners. The price was not disclosed. Building, Design & Construction Magazine | The Choice of Industry Professionals